zurück zu Tag 0

Tag 1: Das Dach muss ab!

weiter mit Tag 2

(27. Oktober 2006) 

Die Änderungen am Dach wollte ich unbedingt von Professionisten durchführen lassen. Ich wollte auf alle Fälle, dass die Konstruktion statisch korrekt ausgeführt wird und dass der Aufbau wasserdicht ist.
Ich traf auf einen sehr verständnisvollen Zimmermannmeister, der sich sehr für meine Konstruktionsidee interessierte. Ich plante ein Sternwartengebäude mit einer eigenen Klimazone (komplette Rundumdämmung) und einem entkoppelten Boden, den ich später in Eigenleistung einbaute.

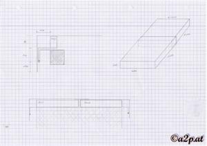
Die Gaupenkonstruktion mit entkoppeltem BodenDie Gaupenkonstruktion mit entkoppeltem Boden (klicken für großes Bild)


Die Seitenwände und die Deckelkonstruktion sind mit dem übrigen Dach und mit der Dachbodendecke mechanisch verbunden. Die Montierung des Teleskops wird ebenfalls direkt auf den Betonboden gedübelt. Der Holzboden des Sternwartengebäudes ist 15 cm vom Betonboden entfernt und ausschließlich an den Seitenwänden (dem Kniestock) fixiert. Die Schwingungen die durch das Gehen hervorgerufen werden, sollten nun über die Seitenwände abgeleitet werden, so dass die Montierung vom Boden entkoppelt und somit vibrationsfrei bleibt.

Scharniere und Deckel im DetailScharniere und Deckel im Detail (klicken für großes Bild)

Nach einigen Planungsstunden und Verhandlungen mit der Zimmerei und der Spenglerei konnte es endlich losgehen.   

Der komplette Dachboden wurde mit 20 cm dicker Mineralwolle wärmegedämmt, das Sternwartengebäude bekam zusätzlich eine separate Rundumdämmung, damit keinerlei warme Luft von den darunter liegenden Räumen eindringen kann. Der Deckel wird in Zukunft ebenfalls Isoliert, da ich vermute, dass sich der Innenraum auf Grund der Sonneneinstrahlung zu stark erhitzen könnte. Ich möchte die Temperatur im Innenraum auf unter 50° C drosseln, da eine zu hohe Raumwärme sich schlecht auf die zum Teil verkittetet Optiken und auf die Elektronik auswirken könnte.  


Freitag frühmorgens kam der Zimmermann und nach dem Abladen des Baumaterials ging es dem Dach an den Kragen.

Zuerst wurde das Dach abgedeckt:

Das abgedeckte DachDas abgedeckte Dach (klicken für großes Bild)

Die sehr bruchempfindlichen Eternitplatten wurden behutsam behandelt und auf der gegenüber liegenden Dachseite gestapelt. Diese Platten sind sehr spröde, wir benötigten einen Teil davon aber noch für die Eindeckung der neuen Gaupe.

Nun musste noch ein Dachsparren entfernt werden, da mein Raum ca. 2 Meter breit werden sollte, der Sparrenabstand aber nur ca. 90 cm beträgt. Dabei kam das sogenannte "Fichtenmopperl" (Fichtenmoped = Motorsäge) zum Einsatz.

Der mit dem Der mit dem "Fichtenmopperl" entfernte Dachsparren (klicken für großes Bild)

Nun ging es weiter mit der Rohkonstruktion. Der gekürzte Sparren musste zusätzlich abgestützt werden, die stehenden Hölzer für die Seitenwände wurden zugeschnitten und am Dachboden fixiert.

Die Stützkonstruktion für die SeitenwändeDie Stützkonstruktion für die Seitenwände (klicken für großes Bild)

Weiter ging es mit der Rauhschalung. Durch die Hilfe von modernen Hilfsmitteln, wie z.B. Spax-Schrauben mit 20 cm Länge, einer Nagelmaschine, der großen Kappsäge und diversen Akkuschraubern wuchs die Konstruktion in einer atemberaubenden Geschwindigkeit immer mehr zu einer Sternenwarte heran

Die Rauhschalung wird angebrachtDie Rauhschalung wird angebracht (klicken für großes Bild)

Der stolze Besitzer bei einer kleine Pause. Zu diesem Zeitpunkt waren ca. 6 Stunden vergangen und der Zimmermann nach einer zünftigen Jause bereits auf dem Heimweg.

Der stolze BesitzerDer stolze Besitzer (klicken für großes Bild)

Für diesen Tag mussten mein Vater und ich nur mehr die Dachgaupe wind- und wasserdicht verpacken. Das Wetter war laut Vorhersage für das Wochenende relativ stabil und trocken angekündigt, aber ich wollte für alle Fälle (vor allem Regenfälle) ein dichtes Dach.

zurück zu Tag 0 weiter mit Tag 2
Im Frame gefangen? Klicken Sie hier um zur Hauptseite zu gelangen. 

© 2006 Armin P. Pressler